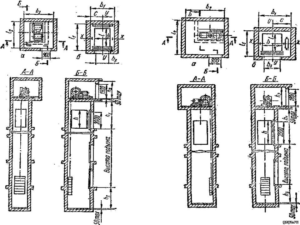
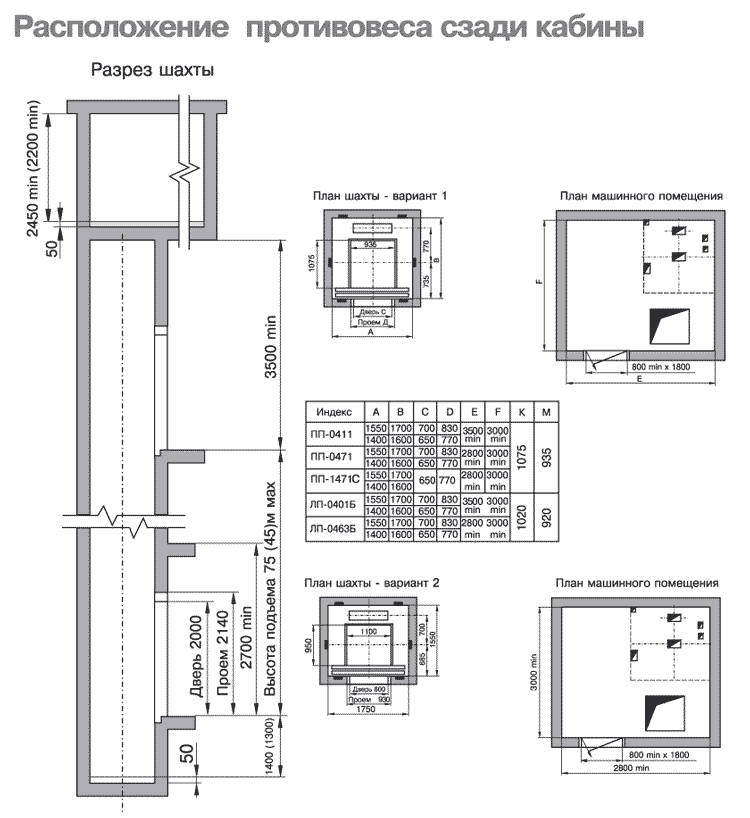
Как устроены электрические схемы современных лифтов. Какие основные компоненты входят в систему управления лифтом. Как правильно осуществлять монтаж и обслуживание электрооборудования лифтов. Какие требования предъявляются к квалификации специалистов по лифтам.
Основные компоненты электрической системы лифта
Электрическая система современного лифта включает в себя следующие основные компоненты:
- Главный привод (электродвигатель)
- Контроллер (система управления)
- Датчики положения кабины
- Кнопки вызова и управления
- Устройства безопасности
- Освещение кабины и шахты
Все эти элементы связаны между собой сложной системой проводов и кабелей. Рассмотрим подробнее назначение и принцип работы основных узлов.
Главный привод лифта
Главный привод обеспечивает движение кабины лифта. В современных лифтах чаще всего используются следующие типы приводов:
- Редукторные электродвигатели переменного тока
- Синхронные двигатели с постоянными магнитами
- Линейные двигатели
Выбор типа привода зависит от назначения и характеристик лифта. Для высокоскоростных лифтов в высотных зданиях применяются более мощные и технологичные двигатели.

Контроллер лифта
Контроллер — это «мозг» всей системы управления лифтом. Он обрабатывает сигналы от кнопок вызова, датчиков положения кабины и других устройств, формируя команды для привода и других исполнительных механизмов.
Современные контроллеры лифтов построены на базе программируемых логических контроллеров (ПЛК) или специализированных микропроцессорных систем. Они обеспечивают точное позиционирование кабины, плавность хода, оптимизацию маршрутов движения и другие интеллектуальные функции.
Датчики положения кабины
Для определения текущего положения кабины лифта в шахте используются различные типы датчиков:
- Магнитные датчики
- Оптические энкодеры
- Ультразвуковые датчики
Информация от датчиков поступает в контроллер и используется для точного позиционирования кабины на этажах. Какие преимущества и недостатки имеют разные типы датчиков положения? Магнитные датчики просты и надежны, но менее точны. Оптические энкодеры обеспечивают высокую точность, но более чувствительны к загрязнениям. Ультразвуковые датчики универсальны, но дороже.

Кнопки вызова и управления
Кнопочные посты в кабине и на этажах обеспечивают интерфейс между пассажирами и системой управления лифтом. Современные кнопки часто оснащаются светодиодной индикацией и сенсорными панелями. Сигналы от кнопок поступают в контроллер лифта.
Устройства безопасности лифта
Электрическая система лифта включает ряд устройств безопасности:
- Ограничитель скорости
- Концевые выключатели
- Датчики дверей кабины и шахты
- Устройство контроля загрузки кабины
Эти устройства обеспечивают защиту от превышения скорости, выхода кабины за пределы рабочей зоны, движения с открытыми дверями и других аварийных ситуаций. При срабатывании устройств безопасности происходит немедленная остановка лифта.
Монтаж электрооборудования лифта
Монтаж электрической системы лифта — сложный и ответственный процесс, требующий высокой квалификации специалистов. Основные этапы монтажа включают:
- Установку главного привода и панели управления
- Прокладку кабельных трасс в шахте лифта
- Монтаж датчиков и устройств безопасности
- Подключение кнопок вызова и управления
- Настройку и программирование контроллера
Все работы должны выполняться в строгом соответствии с проектной документацией и требованиями нормативных документов. Особое внимание уделяется качеству соединений и надежности крепления компонентов.
Обслуживание электрооборудования лифтов
Регулярное техническое обслуживание — важнейшее условие безопасной и надежной работы лифта. План обслуживания электрооборудования лифта включает:
- Проверку состояния контактов и соединений
- Чистку шкафов управления
- Проверку датчиков и устройств безопасности
- Диагностику контроллера
- Измерение сопротивления изоляции
Периодичность и объем работ определяются типом лифта и условиями эксплуатации. Как часто нужно проводить техническое обслуживание электросистемы лифта? Для пассажирских лифтов в жилых домах — не реже 1 раза в месяц, для лифтов с интенсивной эксплуатацией — еженедельно.
Требования к квалификации специалистов
Работы по монтажу и обслуживанию электрооборудования лифтов должны выполняться только квалифицированным персоналом. Основные требования к специалистам:
- Профильное образование
- Допуск к работе с электроустановками
- Знание нормативных документов
- Опыт работы с конкретными типами лифтов
Для повышения квалификации специалисты должны регулярно проходить обучение и аттестацию. Какие документы подтверждают квалификацию специалиста по обслуживанию лифтов? Удостоверение электромеханика по лифтам, свидетельство о прохождении обучения у производителя оборудования, протокол проверки знаний по электробезопасности.

Диагностика неисправностей электросистемы лифта
При возникновении сбоев в работе электрооборудования лифта необходимо провести диагностику для выявления причин. Основные этапы диагностики:
- Анализ кодов ошибок контроллера
- Проверка напряжений в ключевых точках схемы
- Тестирование отдельных компонентов
- Проверка целостности проводки и соединений
Современные системы управления лифтами часто оснащаются функциями самодиагностики, что упрощает поиск неисправностей. Для сложных случаев может потребоваться специальное диагностическое оборудование.
Модернизация электрооборудования лифтов
С развитием технологий возникает необходимость модернизации электрических систем лифтов. Основные направления модернизации:
- Замена релейных систем управления на микропроцессорные
- Установка частотно-регулируемых приводов
- Внедрение систем удаленного мониторинга
- Повышение энергоэффективности
Модернизация позволяет повысить надежность, безопасность и комфорт использования лифтов. Какой экономический эффект дает модернизация электрооборудования лифтов? Снижение энергопотребления на 30-50%, сокращение затрат на обслуживание, увеличение срока службы оборудования.

Перспективы развития электрических систем лифтов
Развитие электрических систем лифтов идет по пути повышения интеллектуальности, энергоэффективности и интеграции в системы «умных зданий». Основные тенденции:
- Применение искусственного интеллекта для оптимизации работы
- Использование беспроводных технологий передачи данных
- Внедрение систем рекуперации энергии
- Разработка безредукторных приводов
Эти инновации позволят сделать лифты еще более удобными, экономичными и экологичными. Как искусственный интеллект может улучшить работу лифтов? Прогнозирование пассажиропотока, адаптивное управление скоростью и ускорением, предиктивная диагностика неисправностей.
Карта сайта
Карта сайта- Главная
выберите подходящий лифт
подобрать лифтновости и события
13.01.2023
Традиционная встреча дилеров ОАО «Могилевлифтмаш»
11.01.2023
Презентационный ролик о роторной парковке
Все новости
|
|
Описание схем сертификации лифтов
Приложение 3
к техническому регламенту
Таможенного союза
«Безопасность лифтов»
(ТР ТС 011/2011)
Содержание и применение схем подтверждения соответствия лифта,
устройства безопасности лифта требованиям технического регламента
«Безопасность лифтов»
1.
Схема 1с:
1.1 аккредитованная испытательная лаборатория:
проводит испытания и измерения параметров лифта на объекте его
установки или на испытательном стенде в порядке и объеме, которые
установлены стандартами из перечня, утвержденного Комиссией Таможенного
Союза;
оформляет результаты испытаний и измерений протоколами.
1.2 орган по сертификации:
проводит анализ соответствия объекта сертификации, результатов
испытаний и измерений требованиям технического регламента;
проводит анализ состояния производства;
оформляет и выдает заявителю сертификат соответствия при
положительных результатах анализа сведений и доказательных материалов,
указанных в статье 6 настоящего технического регламента, а также при
положительных результатах испытаний и измерений, выполненных
аккредитованной испытательной лабораторией;
осуществляет инспекционный контроль за сертифицированным объектом
сертификации.
Периодичность проведения инспекционного контроля
устанавливается органом по сертификации но не реже одного раза в год.
2. Схема 3с (для единовременно изготавливаемой партии) и Схема 4с
(для разового изготовления):
2.1 аккредитованная испытательная лаборатория:
проводит испытания и измерения параметров лифта на объекте его
установки или на испытательном стенде в порядке и объеме, которые
установлены стандартами из перечня, утвержденного Комиссией Таможенного
союза;
оформляет результаты испытаний и измерений протоколами;
2.2 орган по сертификации:
проводит анализ соответствия объекта сертификации, результатов
испытаний и измерений требованиям технического регламента;
оформляет и выдает заявителю сертификат соответствия при
положительных результатах анализа сведений и доказательных материалов,
указанных в статье 6 настоящего технического регламента, а также при положительных результатах испытаний и измерений, выполненных
аккредитованной испытательной лабораторией.
3. Схема 4д (схема декларирования):
3.1 заявитель:
подготавливает собственные доказательства, указанные в статье 6
настоящего технического регламента;
подает заявку в аккредитованную испытательную лабораторию (центр)
для проведения оценки соответствия в форме технического
освидетельствования лифта;
3.2 аккредитованная испытательная лаборатория (центр):
проводит оценку соответствия в форме технического
освидетельствования лифта;
оформляет акт технического освидетельствования лифта;
3.3 заявитель на основании собственных доказательств и положительных
результатов технического освидетельствования оформляет декларацию
соответствия.
Certcom.Ru — сертификация продукции
Бюро трудовой статистики США
ДЛЯ ПРИНТЕРА
- Резюме
- Что они делают
- Рабочая среда
- Как стать единым целым
- Оплата
- Перспектива работы
- Данные штата и района
- Сходные профессии
- Подробнее
Резюме
Пожалуйста, включите JavaScript для воспроизведения этого видео.
Стенограмма видео доступна по адресу https://www.youtube.com/watch?v=eiKCeLiRZeE.
| Краткие сведения: монтажники и ремонтники лифтов и эскалаторов | |
|---|---|
| Медианная заработная плата 2021 г. | 97 860 долларов в год 47,05 $ в час |
| Стандартное начальное образование | Диплом средней школы или эквивалент |
| Опыт работы по родственной профессии | Нет |
| Обучение на рабочем месте | Ученичество |
Количество рабочих мест, 2021 г.![]() | 23 200 |
| Перспективы работы, 2021-31 | 3% (медленнее среднего) |
| Изменение занятости, 2021-31 | 700 |
Чем занимаются монтажники и ремонтники лифтов и эскалаторов
Монтажники и ремонтники лифтов и эскалаторов устанавливают, обслуживают и ремонтируют лифты, эскалаторы, движущиеся дорожки и другие лифты.
Рабочая среда
Монтажники и ремонтники лифтов и эскалаторов часто работают в стесненных условиях внутри подвальных помещений и машинных отделений, а также могут работать на высоте в шахтах лифтов. Большинство установщиков и ремонтников лифтов и эскалаторов работают полный рабочий день. Ремонтники могут быть на связи 24 часа в сутки или могут работать сверхурочно.
Как стать установщиком и ремонтником лифтов или эскалаторов
Монтажникам и ремонтникам лифтов и эскалаторов обычно требуется диплом средней школы или его эквивалент. Почти все учатся делать работу через ученичество. Большинство штатов требуют, чтобы работники имели лицензию.
Заработная плата
Средняя годовая заработная плата монтажников и ремонтников лифтов и эскалаторов в мае 2021 года составила 97 860 долларов США. в среднем по всем профессиям.
Несмотря на ограниченный рост занятости, прогнозируется открытие около 2100 вакансий монтажников и ремонтников лифтов и эскалаторов каждый год, в среднем в течение десятилетия. Ожидается, что большинство этих вакансий возникнет в связи с необходимостью замены работников, которые переходят на другую профессию или выходят из состава рабочей силы, например, в связи с уходом на пенсию.
Данные по штатам и районам
Изучите ресурсы по трудоустройству и заработной плате по штатам и районам для установщиков и ремонтников лифтов и эскалаторов.
Аналогичные профессии
Сравните должностные обязанности, образование, карьерный рост и заработную плату монтажников и ремонтников лифтов и эскалаторов с похожими профессиями.
Дополнительная информация, включая ссылки на O*NET
Узнайте больше об установщиках и ремонтниках лифтов и эскалаторов, посетив дополнительные ресурсы, включая O*NET, источник основных характеристик работников и профессий.
Что делают установщики и ремонтники лифтов и эскалаторов Об этом разделе
Механики проверяют многие детали, в том числе рельсы эскалатора.
Установщики и ремонтники лифтов и эскалаторов устанавливают, обслуживают и ремонтируют лифты, эскалаторы, движущиеся дорожки и другие лифты.
Обязанности
Монтажники и ремонтники лифтов и эскалаторов обычно выполняют следующие действия:
- Чтение и интерпретация чертежей для определения компоновки компонентов системы и выбора оборудования, необходимого для установки или ремонта
- Сборка кабин лифтов и компонентов для аналогичных систем
- Подключение электропроводки к панелям управления и двигателям
- Протестировать вновь установленное оборудование, чтобы убедиться, что оно соответствует спецификациям .
- Устранение неисправностей тормозов, двигателей, переключателей и систем управления
- Демонтаж лифта, эскалатора или аналогичных узлов для удаления и замены неисправных частей с использованием лебедок, лестниц и ручных инструментов или электроинструментов
- Отремонтируйте или замените неисправные компоненты, чтобы вернуть лифт или эскалатор в полностью рабочее состояние
- Проведение профилактического обслуживания и осмотров лифтов, эскалаторов и аналогичного оборудования в соответствии с правилами техники безопасности и строительными нормами
- Храните сервисные записи обо всех задачах по техническому обслуживанию и ремонту

Монтажники и ремонтники лифтов и эскалаторов, также называемые строители лифтов и эскалаторов или механики , собирать, устанавливать, обслуживать и заменять лифты, эскалаторы, кресельные подъемники, движущиеся дорожки и подобное оборудование.
Монтажники и ремонтники лифтов и эскалаторов обычно специализируются на установке, техническом обслуживании или ремонте.
Работникам по техническому обслуживанию и ремонту обычно требуется больше знаний об электронике, гидравлике и электричестве, чем монтажникам. Большинство лифтов и аналогичных механизмов имеют компьютеризированные системы управления, требующие от обслуживающего и ремонтного персонала сложного устранения неполадок.
После установки лифта, эскалатора или другого оборудования рабочие должны регулярно обслуживать и ремонтировать его. Техническое обслуживание включает смазку и смазку движущихся частей, замену изношенных деталей и регулировку оборудования для оптимальной работы. Рабочие также устраняют неполадки и могут быть вызваны для срочного ремонта.
Ремонтная бригада обычно занимается капитальным ремонтом, например, заменой кабелей, дверей и других компонентов или подшипников машин. Обслуживающим бригадам может потребоваться использование резаков или такелажного оборудования, а также может потребоваться серьезная модернизация и переделка, например, замена электродвигателей, гидравлических насосов и панелей управления.
Механики лифтов также работают на кресельных подъемниках.
В 2021 году установщики и ремонтники лифтов и эскалаторов занимали около 23 200 рабочих мест. Крупнейшими работодателями установщиков и ремонтников лифтов и эскалаторов были следующие:
| Подрядчики по строительному оборудованию | 87% |
| Правительство | 3 |
| Образовательные услуги; государственный, местный и частный | 1 |
Работы по установке и ремонту лифтов и эскалаторов обычно требуют физических усилий. Эти рабочие могут сидеть или стоять в течение длительного времени, поднимать предметы весом до 200 фунтов и работать в тесных помещениях внутри подвальных помещений и машинных отделений. Они также могут работать на высоте в шахтах лифтов, в пыльных и грязных местах с замасленным и жирным оборудованием, а также в жарких или холодных условиях.
Травмы и болезни
Монтажники и ремонтники лифтов и эскалаторов могут получить травмы в результате падений, ожоги от поражения электрическим током и растяжения мышц при подъеме и переноске тяжелого оборудования. Чтобы снизить риски и предотвратить травмы, рабочие должны носить защитное снаряжение, такое как каски, привязные ремни и защитные очки.
График работы
Большинство монтажников и ремонтников лифтов и эскалаторов работают полный рабочий день. Они могут работать сверхурочно, чтобы сделать аварийный ремонт или уложиться в сроки строительства. Они могут быть на связи 24 часа в сутки.
Как стать установщиком и ремонтником лифтов или эскалаторов Об этом разделе
Тонкая настройка руля высоты выполняется наладчиком.
Монтажникам и ремонтникам лифтов и эскалаторов обычно требуется диплом средней школы или его эквивалент. Почти все учатся делать работу через ученичество.
Большинство штатов требуют, чтобы работники имели лицензию.
Образование
Обычно требуется аттестат о среднем образовании или его эквивалент. В средней школе могут быть полезны уроки математики, механического черчения и физики.
Обучение
Карьера в сфере установки и ремонта лифтов или эскалаторов обычно начинается с четырехлетней программы ученичества, спонсируемой профсоюзом, отраслевой ассоциацией или работодателем. За каждый год типичной программы ученики должны пройти заранее определенное количество часов технического обучения и оплачиваемого обучения на рабочем месте. Во время обучения ученики узнают о безопасности, чтении чертежей, математике, прикладной физике, деталях лифтов и эскалаторов, электрической и цифровой теории и электронике.
По окончании программы ученичества полностью обученные монтажники и ремонтники лифтов и эскалаторов становятся механиками или помощниками механиков. Монтажники и ремонтники лифтов и эскалаторов нуждаются в постоянном обучении, чтобы не отставать от технологических разработок.
Рабочие с соответствующим опытом, которые могут задокументировать его и продемонстрировать свои навыки, могут претендовать на более короткий срок обучения.
Лицензии, сертификаты и регистрации
В большинстве штатов установщики и ремонтники лифтов и эскалаторов должны иметь лицензию. Свяжитесь с вашим штатом для получения дополнительной информации.
Хотя это и не требуется, сертификация показывает компетентность и профессионализм в данной области.
Установщики и ремонтники лифтов и эскалаторов могут стать сертифицированными техниками по лифтам (CET) или сертифицированными техниками по доступности и лифтам в частных домах (CAT) через Национальную ассоциацию подрядчиков по лифтам . Они также могут быть сертифицированы в качестве квалифицированных инспекторов лифтов (QEI) через Международную национальную ассоциацию органов по безопасности лифтов.
Работодатели могут потребовать от установщиков лифтов и эскалаторов наличия водительских прав или надежного транспорта для поездок на рабочие места.
Улучшение
Установщики могут пройти дополнительное обучение, чтобы специализироваться и стать главным механиком, наладчиком или супервайзером.
Важные качества
Возможность работы на высоте. Некоторым монтажникам лифтов и эскалаторов приходится работать на лестницах, механических подъемниках или в шахтах лифтов.
Ориентирован на детали. Монтажники лифтов и эскалаторов должны вести точный учет графиков обслуживания. Им необходимо тщательно просматривать сложные чертежи и точно следовать инструкциям чертежей.
Механические навыки. Монтажники лифтов и эскалаторов используют различные электрические и ручные инструменты для установки и ремонта лифтов.
Физическая выносливость. Монтажники лифтов и эскалаторов должны быть в состоянии выполнять напряженную работу, в том числе в тесных и замкнутых пространствах, в течение длительного времени.
Физическая сила. Монтажники лифтов и эскалаторов часто поднимают тяжелое оборудование и детали, включая ступени эскалаторов, трубопроводы и металлические гусеницы. Они могут потребоваться для подъема оборудования весом до 200 фунтов.
Навыки устранения неполадок. Монтажники лифтов и эскалаторов должны уметь диагностировать проблемы, особенно при ремонте.
Установщики и ремонтники лифта и эскалаторов
Медианная годовая заработная плата, май 2021
- Установители и ремонтники эскалаторов
$ 97,860
- Другое строительство и соответствующие работники
- . Другие конструкции и родственные работники
- . 45 760 долларов США
Средняя годовая заработная плата монтажников и ремонтников лифтов и эскалаторов составляла 9 долларов.
7860 в мае 2021 года.
Медианная заработная плата — это заработная плата, при которой половина работающих по профессии зарабатывает больше этой суммы, а половина — меньше. Самые низкие 10 процентов заработали менее 47 370 долларов, а самые высокие 10 процентов заработали более 130 940 долларов.
В мае 2021 года средняя годовая заработная плата монтажников и ремонтников лифтов и эскалаторов в ведущих отраслях, в которых они работали, была следующей:
| Правительство | 100 120 долларов США |
| Подрядчики по строительному оборудованию | 98 610 |
| Образовательные услуги; государственный, местный и частный | 80 490 |
Стартовая зарплата учеников обычно составляет около 50 процентов от зарплаты полностью обученных монтажников и ремонтников лифтов и эскалаторов.
Они получают повышение заработной платы по мере продвижения в своем ученичестве. Ученики, которые также являются сертифицированными сварщиками, обычно получают более высокую заработную плату во время сварки.
Большинство монтажников и ремонтников лифтов и эскалаторов работают полный рабочий день. Они могут работать сверхурочно, чтобы сделать аварийный ремонт или уложиться в сроки строительства. Рабочие могут быть на связи 24 часа в сутки.
Монтажники и ремонтники лифтов и эскалаторов
Процентное изменение занятости, прогнозируемое на 2021-31 гг.
Прогнозируется, что занятость установщиков и ремонтников лифтов и эскалаторов вырастет на 3 процента с 2021 по 2031 год, что медленнее, чем в среднем по всем профессиям.
Несмотря на ограниченный рост занятости, прогнозируется открытие около 2100 вакансий монтажников и ремонтников лифтов и эскалаторов каждый год, в среднем в течение десятилетия.
Ожидается, что большинство этих вакансий возникнет в связи с необходимостью замены работников, которые переходят на другую профессию или выходят из состава рабочей силы, например, в связи с уходом на пенсию.
Занятость
Спрос на монтажников и ремонтников лифтов и эскалаторов тесно связан со строительством офисных зданий и магазинов, в которых есть лифты и эскалаторы, и ожидается, что этот тип строительства замедлится в течение прогнозируемого десятилетия.
Однако необходимость регулярно обслуживать, обновлять и ремонтировать старое оборудование; обеспечить доступ для людей с ограниченными возможностями; и установка все более сложного оборудования и средств управления будет поддерживать спрос на монтажников и ремонтников лифтов и эскалаторов.
| Должность | SOC-код | Занятость, 2021 | Прогнозируемая занятость, 2031 | Изменение, 2021-31 | Занятость по отраслям | ||
|---|---|---|---|---|---|---|---|
| Процент | Цифровой | ||||||
ИСТОЧНИК: Бюро статистики труда США, Программа прогнозов занятости | |||||||
Монтажники и ремонтники лифтов и эскалаторов | 47-4021 | 23 200 | 23 900 | 3 | 700 | Получить данные | |
Программа статистики занятости и заработной платы (OEWS) ежегодно производит оценки занятости и заработной платы для более чем 800 профессий.
Эти оценки доступны для страны в целом, для отдельных штатов, а также для столичных и неметропольных территорий. Ссылки ниже ведут на карты данных OEWS по занятости и заработной плате по штатам и районам.
- Монтажники и ремонтники лифтов и эскалаторов
Прогнозы профессиональной занятости разрабатываются для всех штатов отделом информации о рынке труда (LMI) или отделами прогнозов занятости отдельных штатов. Все данные прогнозов штата доступны на сайте www.projectionscentral.com. Информация на этом сайте позволяет сравнивать прогнозируемый рост занятости по профессии между штатами или в пределах одного штата. Кроме того, штаты могут составлять прогнозы по районам; есть ссылки на веб-сайты каждого штата, где эти данные могут быть получены.
CareerOneStop CareerOneStop включает в себя сотни профессиональных профилей с данными, доступными по штатам и городам. В левом боковом меню есть ссылки для сравнения профессиональной занятости по штатам и профессиональной заработной платы по местности или городскому району.
Существует также инструмент информации о зарплате для поиска заработной платы по почтовому индексу.
В этой таблице приведен список профессий с должностными обязанностями, аналогичными обязанностям монтажников и ремонтников лифтов и эскалаторов.
| Род занятий | Должностные обязанности | НАЧАЛЬНОЕ ОБРАЗОВАНИЕ | СРЕДНЯЯ ЗАРПЛАТА 2021 | |
|---|---|---|---|---|
| Котельщики | Котельщики собирают, устанавливают, обслуживают и ремонтируют котлы, закрытые чаны и другие большие сосуды или контейнеры, содержащие жидкости и газы. | Диплом средней школы или эквивалент | 64 290 долларов США | |
| Монтажники и ремонтники электрооборудования и электроники | Монтажники и ремонтники электрооборудования и электроники устанавливают или ремонтируют различное электрооборудование. | Посмотрите, как стать одним из них | 61 760 долларов США | |
| Электрики | Электрики устанавливают, обслуживают и ремонтируют электроэнергию, связь, освещение и системы управления. | Диплом средней школы или эквивалент | 60 040 долларов США | |
| Механики промышленных машин, рабочие по обслуживанию машин и монтажники | Механики по промышленному оборудованию, рабочие по обслуживанию машин и слесари устанавливают, обслуживают и ремонтируют заводское оборудование и другое промышленное оборудование. | Диплом средней школы или эквивалент | 59 380 долларов США | |
| Металлурги | Металлурги устанавливают конструкционное и арматурное железо и сталь для формирования и поддержки зданий, мостов и дорог. | Диплом средней школы или эквивалент | 57 160 долларов США | |
| Обработчики листового металла | Работники листового металла изготавливают или устанавливают изделия из тонких металлических листов. | Диплом средней школы или эквивалент | 53 440 долларов США | |
| Техники по ветряным турбинам | Специалисты по обслуживанию ветряных турбин устанавливают, обслуживают и ремонтируют ветряные турбины. | Премия после окончания средней школы | 56 260 долларов США |
Для получения информации об обучении или возможностях трудоустройства в качестве установщика или ремонтника лифтов и эскалаторов обращайтесь к местным подрядчикам по лифтам и эскалаторам, в местное отделение Международного союза строителей лифтов, в местный совместный комитет профсоюзов и руководства по обучению или в ближайший офис вашего государственная служба занятости или агентство ученичества.
Информацию об ученичестве можно получить в программе ученичества Министерства труда США в Интернете или по телефону 877-872-5627. Посетите Apprenticeship.gov , чтобы найти возможности ученичества.
Для получения дополнительной информации об установщиках и ремонтниках лифтов посетите
Международный Союз Строителей Лифтов
Национальная образовательная программа лифтовой промышленности
Для получения дополнительной информации о программе стажировки NAEC, программе сертифицированного специалиста по лифтам или программе сертифицированного специалиста по специальным возможностям и частным лифтам посетите веб-сайт
.Национальная ассоциация подрядчиков по лифтам
Для получения дополнительной информации о сертификации в качестве квалифицированного инспектора по лифтам посетите веб-сайт
.Международная национальная ассоциация органов безопасности лифтов
Для получения информации о возможностях для ветеранов вооруженных сил посетите:
От шлемов до касок
О*NET
Монтажники и ремонтники лифтов и эскалаторов
Рекомендуемая ссылка:
Бюро статистики труда, Министерство труда США, Справочник по профессиональным перспективам , Монтажники и ремонтники лифтов и эскалаторов,
на https://www.
bls.gov/ooh/construction-and-extraction/elevator-installers-and-repairers.htm (посещено 18 января 2023 г. ).
Дата последнего изменения: Пятница, 30 сентября 2022 г.
Лифты KONE для новых зданий
- ДОМ
- Новостройки
- Лифты
ИНТЕЛЛЕКТУАЛЬНЫЙ
Интеллектуальный лифт KONE DX оцифровывает революционный опыт пассажиров, обеспечивая более плавный поток людей и более надежное обслуживание. Усовершенствованные лифты KONE DX также позволяют возводить более высокие здания и быстрее перемещаться.*
* По сравнению с KONE MonoSpace 500. Увеличенный ход и скорость, равная или превышающая 500 футов в минуту, доступны на некоторых рынках.
Какой лифт вам нужен?
Посмотрите наши перспективные энергоэффективные лифты с возможностью подключения к Интернету вещей, разработанные для улучшения движения людей и материалов.
Примеры использования лифтов KONE DX
Коллекция дизайна KONE
Отделка лифтов KONE улучшает внешний вид здания. Освещение, создающее идеальное настроение. Комбинации материалов, которые вдохновляют и восхищают. Сделайте каждую поездку в лифте вдохновляющей и комфортной с коллекцией дизайна KONE.
Начните проектировать сейчас
Свяжитесь с нами
Вы можете использовать форму ниже, чтобы рассказать нам больше о том, как мы можем вам помочь. Один из наших сотрудников свяжется с вами как можно скорее.
Образец формы
Чем мы можем вам помочь?
Пожалуйста, выберите… Я заинтересован в продукте или услуге KONEЯ хочу связаться со службой поддержки клиентов KONEЗаинтересованы в возможностях работы
Для запросов о вакансии и статусе заявки: Если ваше резюме будет выбрано, команда по подбору персонала свяжется с вами и назначьте время для разговора.
Пожалуйста, подайте заявку здесь, если вы являетесь внешним кандидатом, и подайте заявку на любые роли, которые лучше всего соответствуют вашим навыкам и интересам. Если у вас возникли проблемы с подачей заявки, попробуйте использовать другой интернет-браузер (например, Internet Explorer, Google Chrome, Firefox, Mozilla и т. д.). Если у вас возникнут дополнительные вопросы по подбору персонала, посетите нашу страницу часто задаваемых вопросов о рекрутинге.
Скрытый вопрос
Имя
Фамилия
Компания
Телефон (введите номер в международном формате без пробелов, например, +17749612345)
Адрес компании
Postcode
State
, пожалуйста … AlabamaMALAMALAMALAMALAMALAMALAIRAMALAIRAMALAIRAMALAIRAMALAIRAMALAIRAMALAIRAMALAIRAMALAIRAMALAIRAMALAIRAMAL SamoaArizonaArkansasCaliforniaColoradoConnecticutDelawareDistrict of ColumbiaFloridaGeorgiaGuamHawaiiIdahoIllinoisIndianaIowaKansasKentuckyLouisianaMaineMariana IslandsMarylandMassachusettsMichiganMinnesotaMississippiMissouriMontanaNebraskaNevadaNew HampshireNew JerseyNew MexicoNew YorkNorth CarolinaNorth DakotaOhioOklahomaOregonPennsylvaniaPuerto RicoRhode IslandSouth CarolinaSouth DakotaTennesseeTexasUtahWashingtonVermontWest VirginiaVirginiaVirgin IslandsWisconsinWyoming
Я клиент KONE
Я клиент KONE
Мой запрос о
Пожалуйста, выберите.
..Услуги по техническому обслуживаниюТекущий проектСчетаЦифровые инструменты KONE ЖалобаОтзыв о KONEНовый проектКонтент на этом веб-сайтеДругое
Мой запрос о
Пожалуйста, выберите …Установка нового оборудования в новом зданииУстановка нового оборудования в существующем зданииРемонт или модернизация существующего оборудованияНовый контракт на техническое обслуживаниеKONE 24/7 Аварийная связьKONE 24/7 Connected ServicesДругоеМой вопрос о *|Установка нового оборудования в новом здании|Установка нового оборудования в существующее здание|Ремонт или модернизация существующего оборудования|Техническое обслуживание|24/7 экстренная связь|24/7 подключенные услуги|ДругоеПожалуйста, выберите… ЛифтыАвтомобилиЭскалаторыУмные здания Услуги по планированию потоков людей Несколько/другое Тип оборудования/услуг *|Лифты|Автомобили|Эскалаторы|Расширенные решения для управления потоками людей|Планирование потоков людей|Другое
специальные зданияМедицинаОбщественный транспорт и аэропортыМорские (например, суда или морские установки)Другое
Пожалуйста, выберите.





